Restauro Palazzo Buonvisi

Il Palazzo Buonvisi d’Estate è situato in Via Fillungo, la strada principale che attraversa tutto il centro storico di Lucca, di fronte al più antico palazzo, detto d’Inverno, appartenente alla stessa famiglia completamente devastato durante la Rivolta degli Straccioni (30 aprile 1531).

Probabile che dall’unione di due proprietà medioevali attigue nasce Palazzo Buonvisi così come lo conosciamo oggi: Il Palazzo d’estate si innesta sulla leggera curva della strada preesistente, la principale ruga del borgo medioevale di San Frediano che, nel 1619 veniva indicata come la “strada dei Bonvisi”, acquistando da questa posizione e dalla considerevole larghezza motivo di solennità.

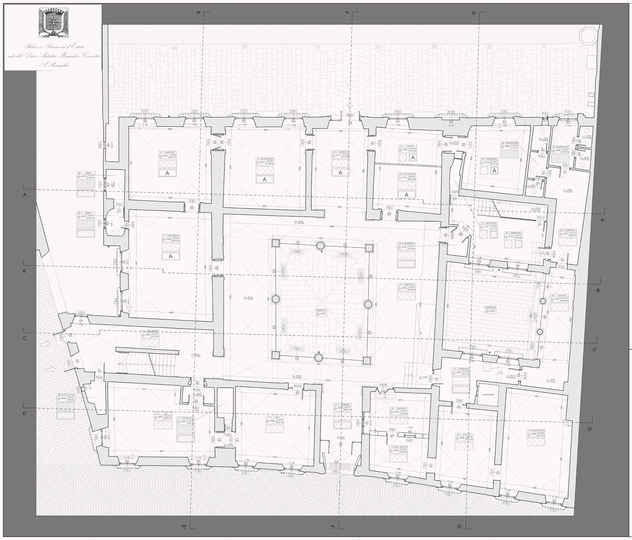
Fu completamente ristrutturato intorno al 1588, data ritrovata incisa sua un trave del tetto durante i lavori di restauro: in questo tempo la figura di maggiore spicco della Famiglia Buonvisi era il Cardinale Buonviso (1561-1603), a cui è da riferire la costruzione. Il Palazzo è una delle più fastose architetture civili del Cinquecento di Lucca: ha una facciata molto estesa, sottolineata da una rilevante dignità del compassato tessuto architettonico attraverso splendide membrature in pietra che si disegnano nettamente sull’intonaco chiaro ed è l’unico della città ad avere due cortili interni posti a diverso livello.

Il lavoro eseguito, ha riguardato il rilievo architettonico e la rappresentazione dello stato di degrado, il tutto utilizzando il sistema informativo BIM, il rilievo laser scanner con nuvola di punti e la ricostruzione fotogrammetrica.